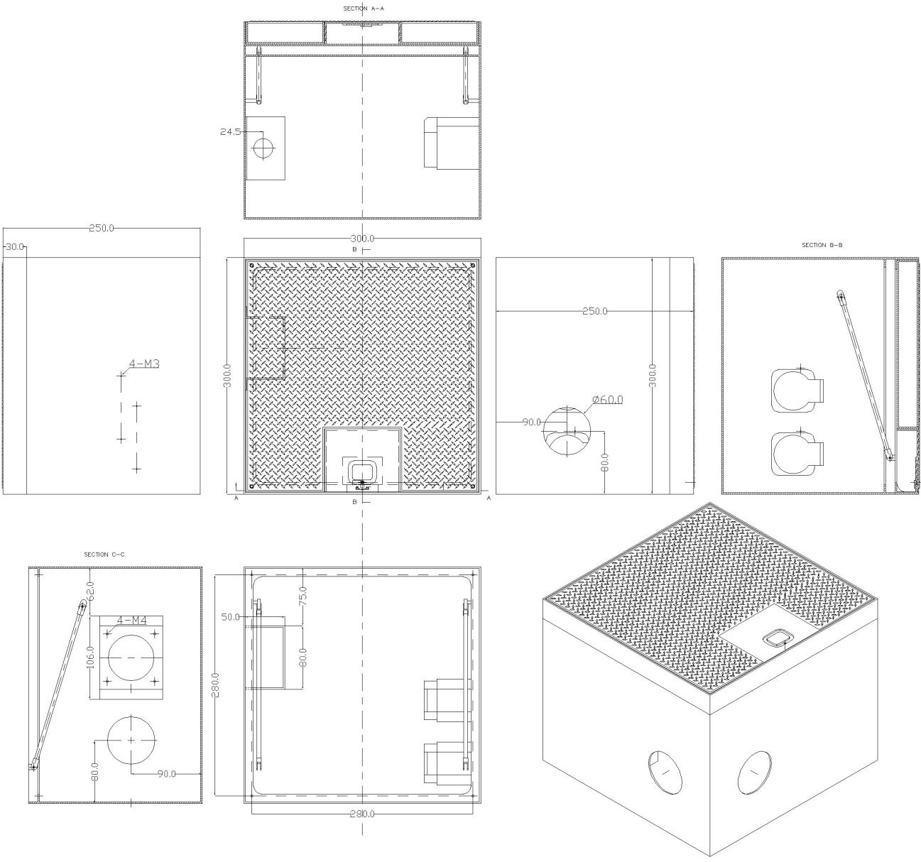
The enclosures of all maintenance boxes shall be fabricated from halogen-free, non-toxic, and environmentally sustainable materials. Their corrosion resistance shall be capable of withstanding exposure to solutions with an acid concentration of 10% or an alkali concentration of 10% and above. The material shall exhibit a temperature stability range of no less than -40°C to +90°C, and its flame resistance temperature in the hot filament test shall not be lower than +960°C. It shall possess properties such as full insulation, dust resistance, water resistance, corrosion resistance, impact resistance, UV resistance, heat resistance, flame retardancy, shock resistance, and high mechanical strength.
Sectional maintenance boxes shall be made of polycarbonate material, which is characterized by corrosion resistance, halogen-free composition, flame retardancy, and self-extinguishing capability. The impact resistance rating shall meet IK09, and the box body shall be of an integrated design. Sealing bolts shall be provided for cable entry into the maintenance boxes, and sufficient space for incoming cables shall be considered. Sockets shall have high impact resistance and corrosion resistance; industrial connectors shall have a protection rating of IP67. Sockets and circuit breakers shall be mounted on the surface of the box body for ease of operation, with specific configurations detailed in the system diagram of the sectional maintenance boxes. The overall protection rating of the maintenance boxes shall reach IP66.




